About K-Circle Business Center

36-57 Main Street 2/FL, Flushing, NY 11354

K-Circle is a Coworking space in downtown Flushing, NY tailor-made to help businesses succeed by providing professional office for lease, conference room and classroom for hourly rental and mailbox for monthly rental, seminars, & networking events,

: k-circle flushing, street view of K-circle Flushing outside

Conference Room, Classroom & Mailbox Rental

Rental Package

Room #

Capacity #

Service Detail

Mailbox

201

Letter / Small Parcel

$100/month, Min. 6 months

Conference Room

206

about 250 SF / 20 Seats

$55/Hour, Min. 2 Hours

Classroom

211

about 450 SF / 40 Seats

$75/Hour, Min. 2 Hours

Service Detail:

Monday – Sunday 9 AM – 6 PM

Projector will be provided

24 hours 7 days Hot and Cold filtered Water

Internet Speed as fast as  200M/Second ,

copy/scan/print:$0.10/page

For any inquiry, please call K-Circle 516-939-8887 or email info@kcircle.us

Picture of Conference Room

K-Circle Conference Room

Picture of Classroom

k-Circle Monthly Mailbox Rental Services

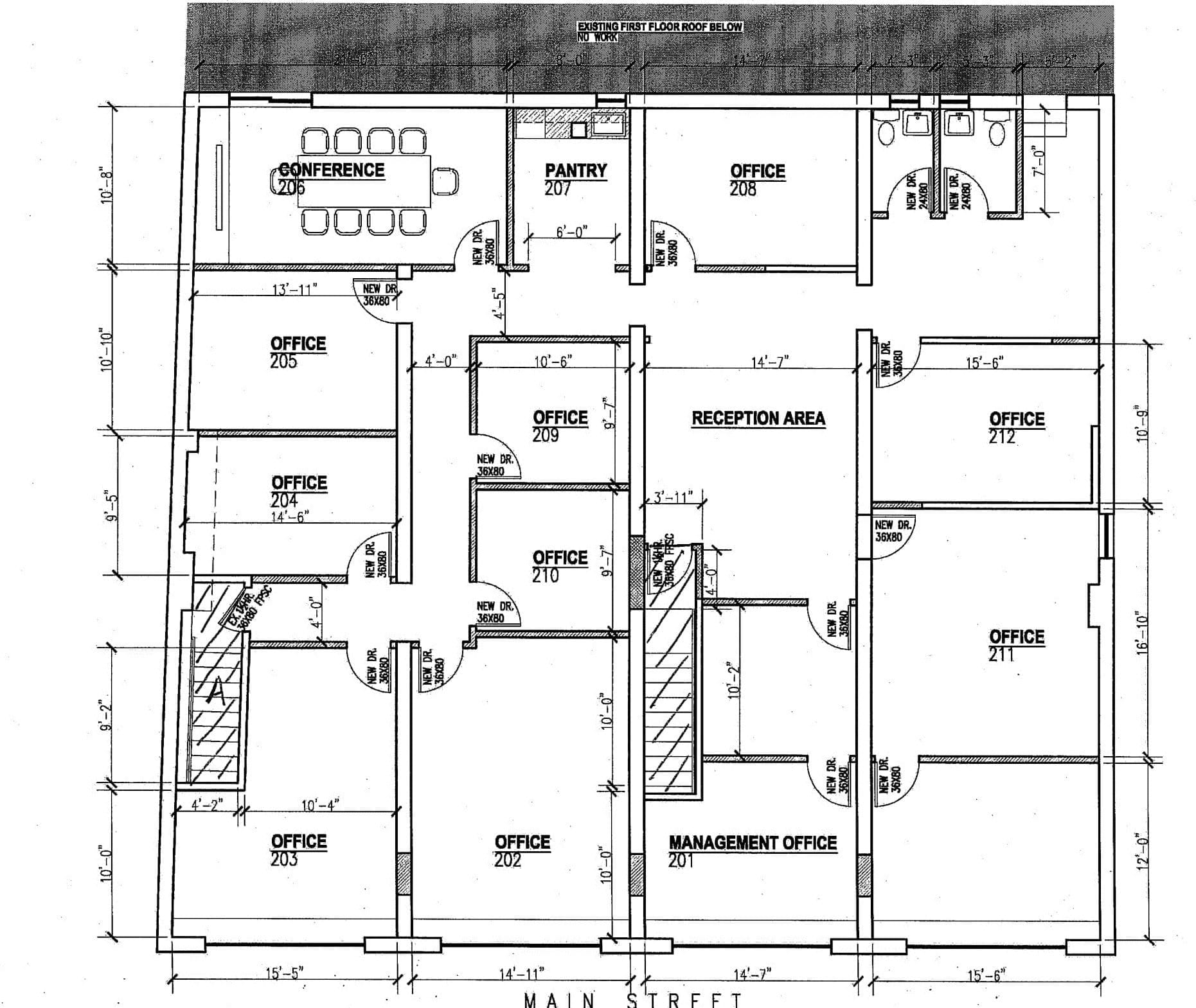
Office Space for Lease

36-57 Main Street 2/FL, Flushing, NY 11354

Room # on Floor Plan

Gross Room Area (SF)

Net Room Area (SF)

201

399

290

202

386

280

203

364

264

204

193

140

205

193

140

206

330

250

208

207

150

209

151

110

210

151

110

211

620

450

212

220

160

For any inquiry, please call K-Circle 516-939-8887 or email info@kcircle.us

K-circle front desk area

Office Space Picture, professional and well maintained

Value Added Services at K-Circle

SERVICE Provider

Service Detail

Kenvic Training

Amazon Seller Training from 0 to Hero

Unique Talents

Staffing Service

Kenvic Training

Business Classes

ISM ECommerce Federation

Company Startup Assistance

Contact K-Circle Manager

Tel#: 516-939-8887  

email: info@kcircle.us

Wechat: ilovekti8